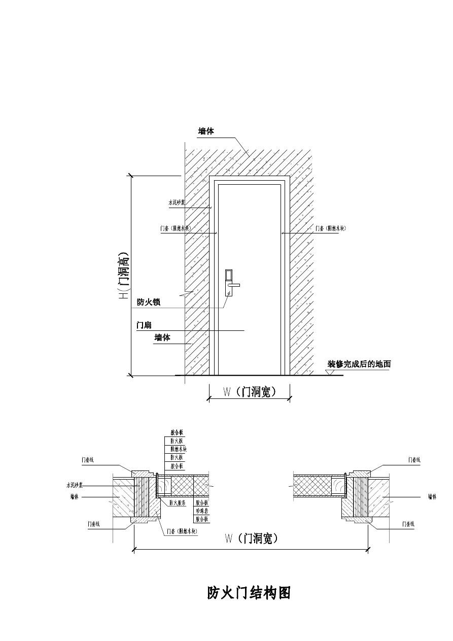
防火门是指在一定时间内能满足耐火稳定性、完整性和隔热性要求的门。它是设在防火分区间、疏散楼梯间、垂直竖井等具有一定耐火性的防火分隔物。 防火门除具有普通门的作用外,更具有阻止火势蔓延和烟气扩散的作用,可在一定时间内阻止火势的蔓延,确保人员疏散。
钢质防火门:用钢质材料制作门框、门扇骨架和门扇面板,门扇内若填充材料,则填充对人体无毒无害的防火隔热材料,并配以防火五金配件所组成的具有一定耐火性能的门。




产品简介:
防火门是指在一定时间内能满足耐火稳定性、完整性和隔热性要求的门。它是设在防火分区间、疏散楼梯间、垂直竖井等具有一定耐火性的防火分隔物。 防火门除具有普通门的作用外,更具有阻止火势蔓延和烟气扩散的作用,可在一定时间内阻止火势的蔓延,确保人员疏散。防火门是指在一定时间内能满足耐火稳定性、完整性和隔热性要求的门。它是设在防火分区间、疏散楼梯间、垂直竖井等具有一定耐火性的防火分隔物。 防火门除具有普通门的作用外,更具有阻止火势蔓延和烟气扩散的作用,可在一定时间内阻止火势的蔓延,确保人员疏散。
钢质防火门:用钢质材料制作门框、门扇骨架和门扇面板,门扇内若填充材料,则填充对人体无毒无害的防火隔热材料,并配以防火五金配件所组成的具有一定耐火性能的门。


